
Na predaj, rodinný dom, Žilina - Višňové
Višňové, Višňové
- Izby 5
- Pozemok 642 m2
- Kúpelne 2
Ponúkame na predaj pozemky a rodinné domy v hrubej stavbe v obci Dubové. Na výber máte 2 pozemky s celodenným slnečným svitom s výmerami 500 m2 a 850 m2.
Inžinierske siete (voda, elektrika a plyn) sú na hraniciach prístupovej cesty. Pozemky sa nachádzajú v intraviláne obce a sú určené na výstavbu rodinných domov.
Domy majú kuchyňu s obývačkou s výstupom na terasu, 3 izby, kúpeľňu, toaletu, chodbu, kotolňu, sklad a špajzu. Dispozičné riešenie je starostlivo navrhnuté tak, aby poskytovalo maximálny komfort. Dom má jasne oddelenú dennú a nočnú zónu, pričom dôraz bol kladený na efektívne využitie priestoru.
Ako bonus ponúka dostatok úložných priestorov – čo je často nedostatkom moderných novostavieb.
V cene je zahrnutá kompletná projektová dokumentácia a inžiniering, pričom dom je možné dokončiť až do štádia holodomu.
Cena holodomu od 163.000,- Eur ( v závislosti od veľkosti pozemku a požiadaviek klienta)
Výhodou je možnosť dokončenia domu podľa vašich predstáv. V tomto štádiu môžete ovplyvniť detaily a upraviť jednotlivé prvky tak, aby presne zodpovedali vašim potrebám.
Chcete bývanie v dome s pozemkom za cenu bytu? Nečakajte, kontaktujte ma a rád vám tento zaujímavý projekt predstavím osobne!
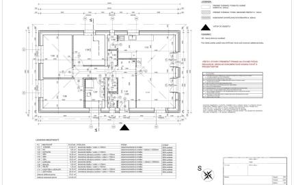
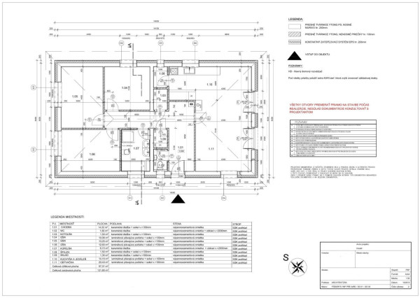
Parametre domu:
Rozloha: 14,5 x 8,4 m
Zastavaná plocha: 122 m²
Úžitková plocha: 97,5 m²
Dispozičné riešenie: 4 izby s dôrazom na funkčnosť a dostatok úložného priestoru
Dispozícia domu:
Vstupná chodba - 6,08 m2
Toaleta - 1,5 m2
Kotolňa - 1,5 m2
Chodba - 8,82 m2
Spálňa - 10,23 m2
Spálňa - 13,20 m2
Spálňa - 12,30 m2
Kúpeľna s toaletou - 6,60 m2
Sklad - 1,30 m2
Kuchyňa - 4,80 m2
Špajza - 1,60 m2
Obývacia izba - 30 m2
Dom sa predáva v štádiu uzavretej hrubej stavby, ktorá obsahuje:
✅ základovú dosku,
✅ obvodové murivo Ytong hr. 250 mm,
✅ priečky Ytong hr. 100 a 150 mm,
✅ krov so strešnou krytinou
✅ plastové 6 komorové okná s 3sklom
✅ vchodové dvere
V prípade záujmu dokončíme dom podľa požiadaviek klienta.
Financovanie vybavujeme v ktorejkoľvek banke.
V prípade záujmu kontaktujte makléra Martin Lončík.
Interné ID: | 133 |
---|---|
Obec: | Dubové |
Okres: | Turčianske Teplice |
Kraj: | Žilinský kraj |
Druh: | Domy |
Typ: | Predaj |
Typ domu: | Rodinný dom |
Iné: |