Používame cookies

Súbory cookie a ďalšie technológie sledovania používame na zlepšenie vášho zážitku z prehliadania našich webových stránok, na to, aby sme vám zobrazovali prispôsobený obsah a cielené reklamy, na analýzu návštevnosti našich webových stránok a na pochopenie toho, odkiaľ naši návštevníci prichádzajú. Viac info

Na predaj, stavebný pozemok so stavebným povolením, RES group

Popis nehnuteľnosti

Zdieľať na Facebooku

Pozemok s víziou. Nie pre každého – ale pre správneho majiteľa.

Niektoré pozemky sú jednoduché. Rovné, predvídateľné… a rovnaké ako desiatky ďalších.

A potom sú také, ktoré vás na prvý pohľad prinútia zastaviť sa a premýšľať.
Tento je presne taký!

Na začiatku obce Horný Vadičov ponúkame na predaj slnečný stavebný pozemok s právoplatným stavebným povolením, ktorý v sebe neskrýva len miesto pre dom, ale aj jasnú architektonickú myšlienku.

Keď terén tvorí architektúru..

Pozemok je v prednej časti rovinatý, postupne prechádza do svahu, do ktorého je navrhnuté samotné osadenie domu.

Práve tento prvok vytvára niečo, čo na bežnom pozemku nevznikne: prirodzené prepojenie domu s terénom, viac súkromia a zaujímavé dispozičné riešenie.

Časť prvého podlažia je zapustená do svahu, čím vzniká:

- prirodzená izolácia
- stabilná vnútorná klíma
- a architektúra, ktorá má charakter

Toto nie je kompromis. Toto je vedomý návrh, ktorý využíva potenciál pozemku naplno.

Pripravené na výstavbu – bez čakania
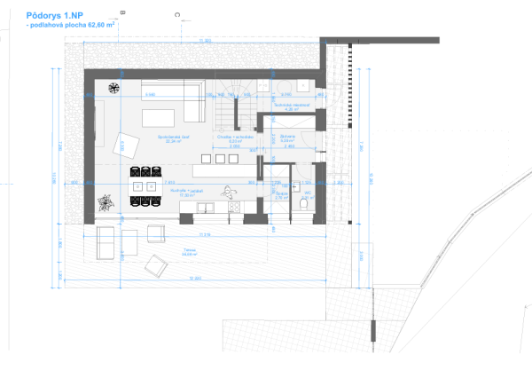
Pozemok sa predáva s právoplatným stavebným povolením na výstavbu dvojpodlažného rodinného domu: zastavaná plocha: 109 m², úžitková plocha: 126 m². Dispozícia: prvé poschodie: vstupná chodba, wc, obývačka spojená s kuchyňou a jedálňou, technická miestnosť a schodisko na druhé poschodie. Druhé poschodie: 3 samostatné izby, kúpelňa s vaňou a sprchovým kútom.

V blízkosti pozemku sa nachádzajú všetky dôležité inžinierske siete: voda, elektrina, plyn.

To znamená jediné – môžete začať stavať bez zdĺhavého povoľovacieho procesu.

Lokalita

Horný Vadičov ponúka presne to, čo dnes ľudia hľadajú čoraz viac:
pokoj, prírodu a dostupnosť do mesta bez každodenného chaosu.

Pozemok sa nachádza na začiatku obce, čo zabezpečuje dobrú dostupnosť a zároveň dostatok súkromia.

Pre koho je tento pozemok?

Buďme úprimní – toto nie je ponuka pre každého.

Je pre ľudí, ktorí:

- nechcú tuctový dom na rovine
- vidia potenciál tam, kde ho iní prehliadnu
- chcú si vytvoriť bývanie podľa vlastných predstáv
- neboja sa pustiť do realizácie vlastného projektu

 

Takéto pozemky sa nepredávajú najrýchlejšie – ale predajú sa najlepšie tomu, kto ich pochopí.

Ak hľadáte miesto, kde nevznikne len dom, ale premyslený priestor pre život, rád vám tento pozemok osobne predstavím.

Vlastnosti

Status:
aktívne
Vlastníctvo:
osobné
Plocha pozemku:
999 m2
Typ zeme:
svahovitá
Teritórium:
Intravilán
Šírka pozemku:
23 m
Dĺžka pozemku:
37 m
Celková plocha:
999 m2
Orientácia:
juh
Inžinierske siete:
áno
Voda:
áno
Elektrika:
áno
Plyn:
áno
Voda - blízko pozemku:
áno
Elektrika - blízko pozemku:
áno
Plyn - blízko pozemku:
áno
52 000 €
Ulica: Horný Vadičov
Obec: Horný Vadičov
Okres: Kysucké Nové Mesto
Kraj: Žilinský kraj
Druh: Pozemky
Typ: Predaj
Typ pozemku: Pozemok pre rodinné domy
Iné:

Radi Vám poradíme